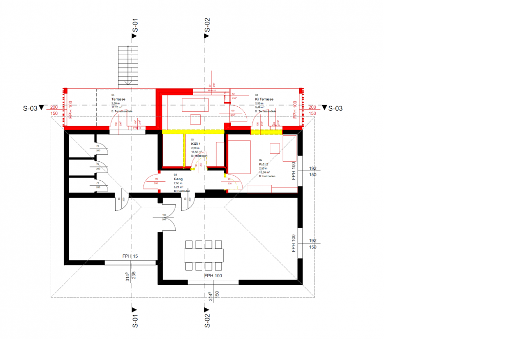
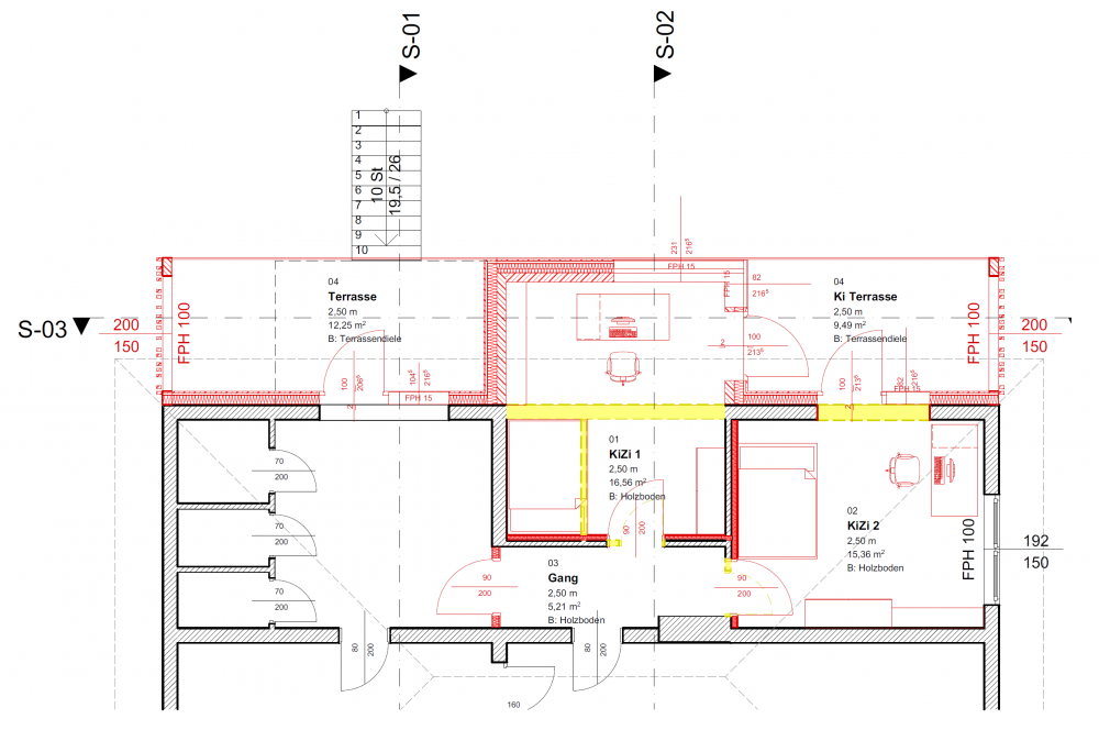
Haus L, Zubau in Massivholzbauweise