Direkt zum Inhalt
Thomas Zach Architektur
Hauptmenü
news
projekte
office
publikationen
kontakt
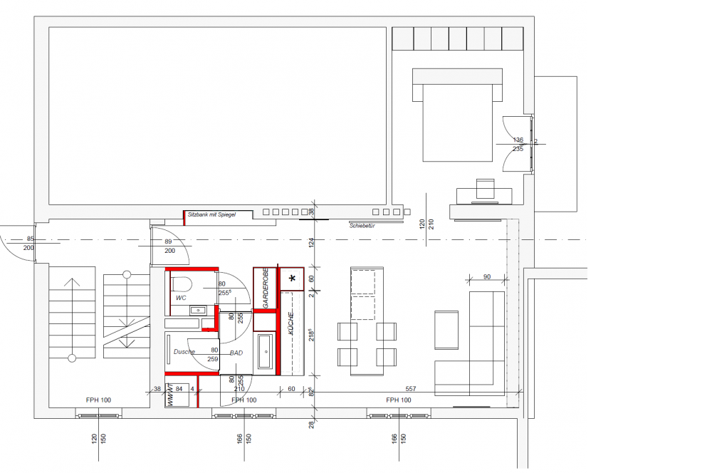
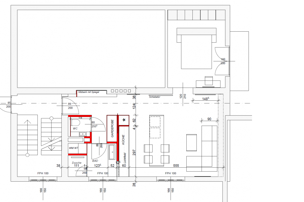
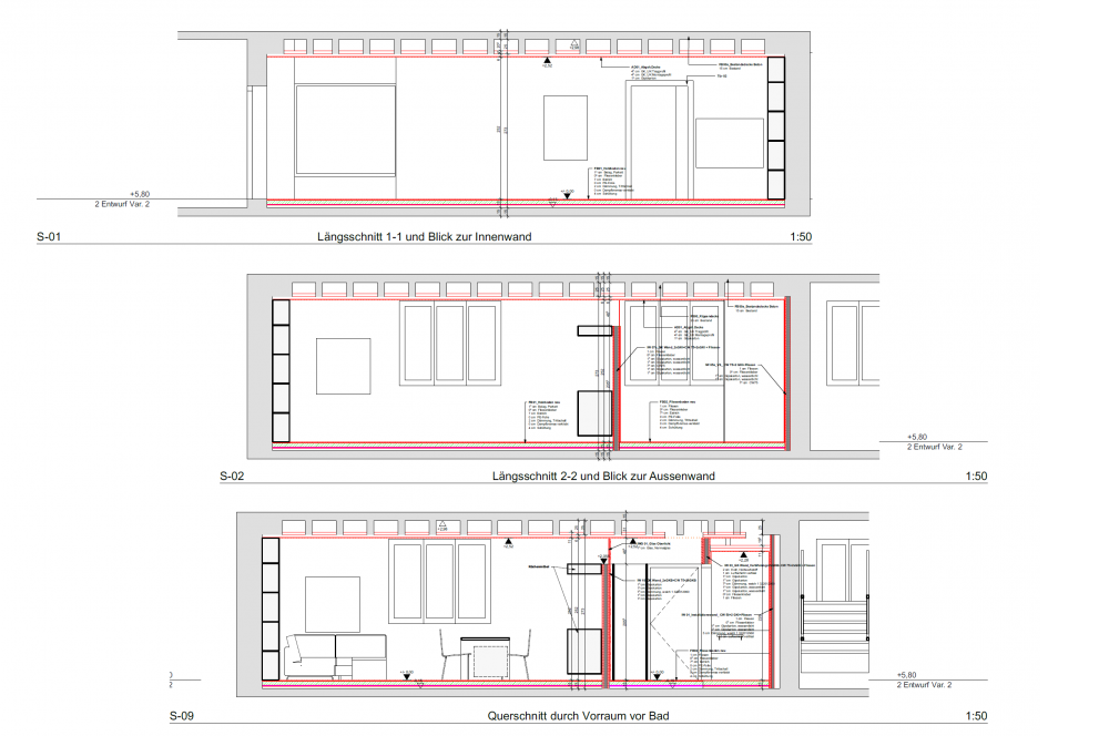
Wohnung P Umbau